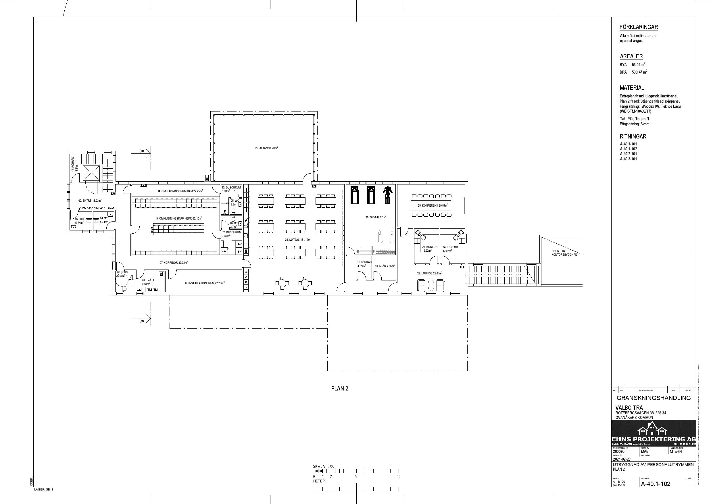
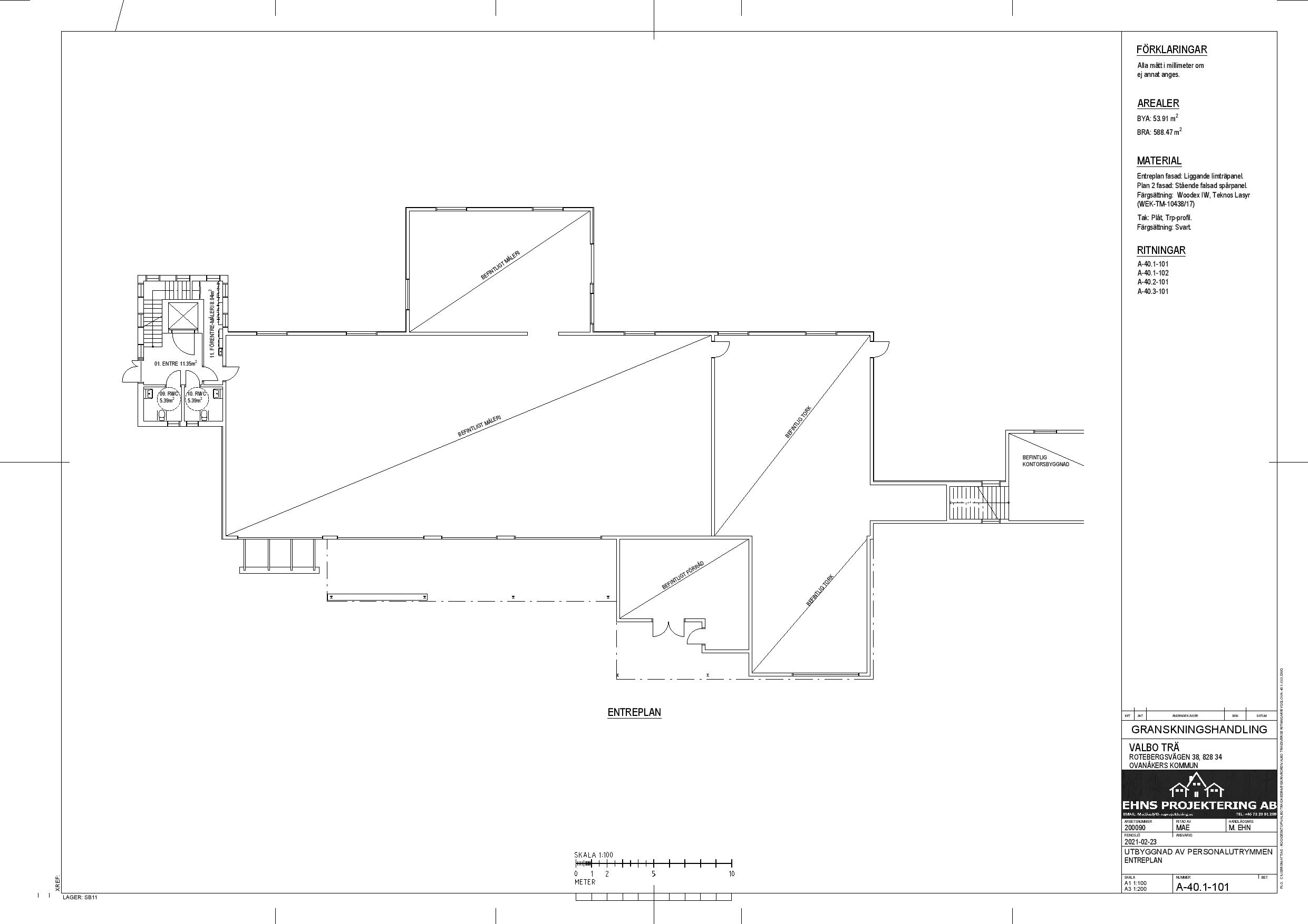
Påbyggnad av 1st personalutrymme ovanpå befintligt måleri som skulle anslutas mot befintlig kontorsbyggnad.
Vårat uppdrag var att ta fram kompletta bygglovshandlingar samt rumsbeskrivning i samråd med beställare, konstruktiv huvudsektion för tekniskt samråd, kompletta stomhandlingar för prefabricering av väggelement, bjälklagsplan för ny byggnad, samt takplan och takstolsdimensionering.










